Home
Services
Find Your Home
Available Lots
Available Homes
Available Floor Plans
About Us
Contact Us
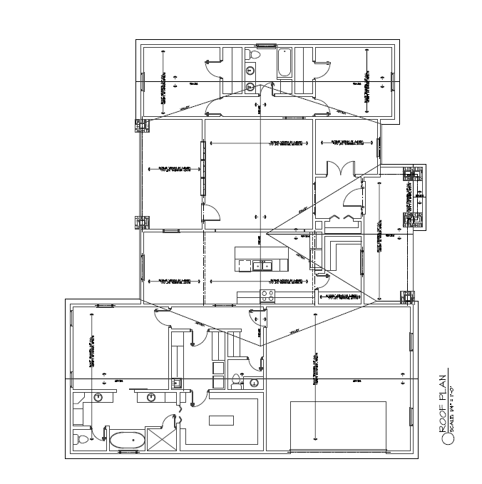
Coopergate
Explore this thoughtfully designed floor plan
Floor Plan Information
Title:
Coopergate
Contact Us
Back to Floor Plans